33506 Blue Water Way, Temecula, CA 92592
Toggle Navigation
Images
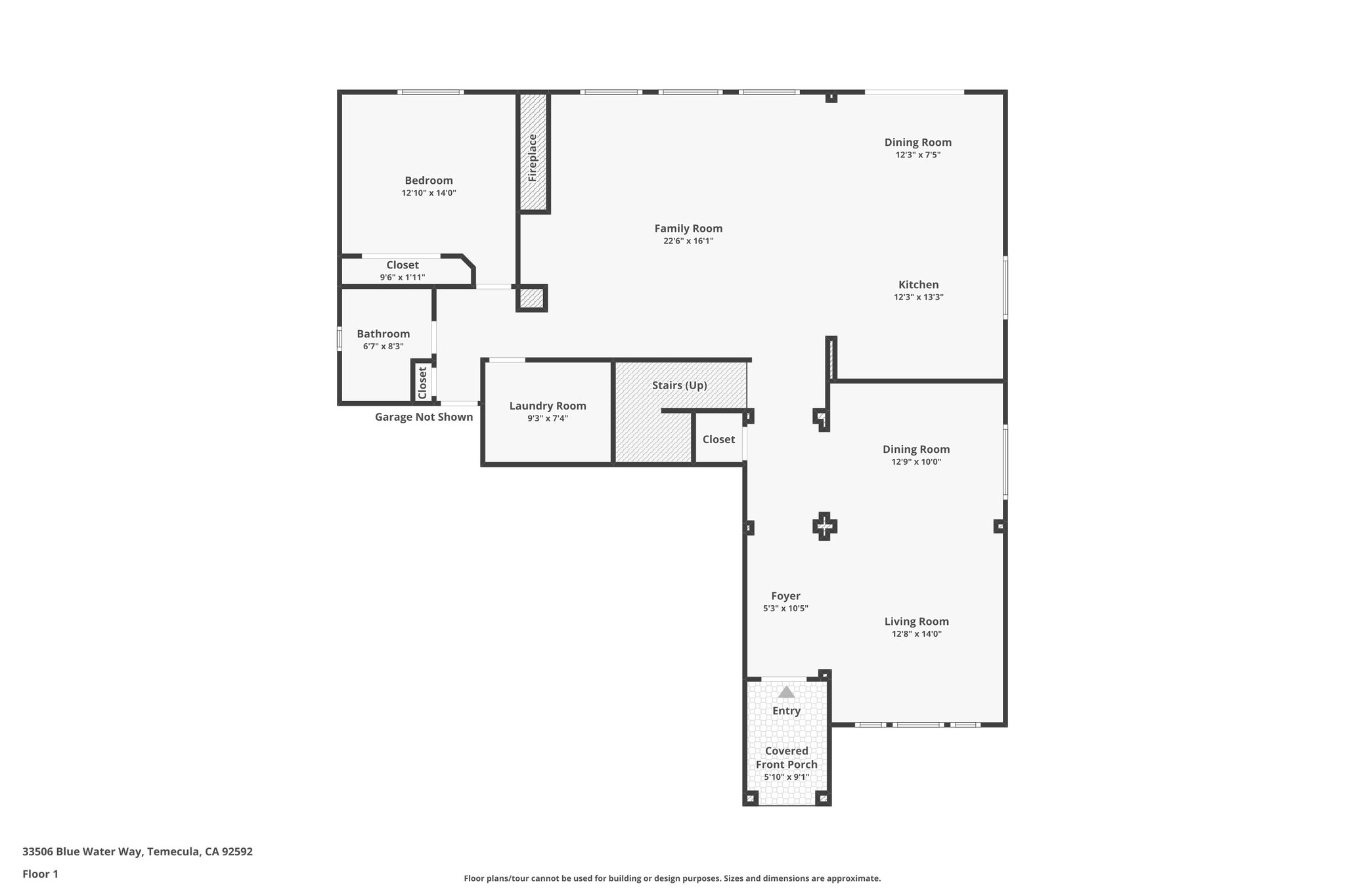
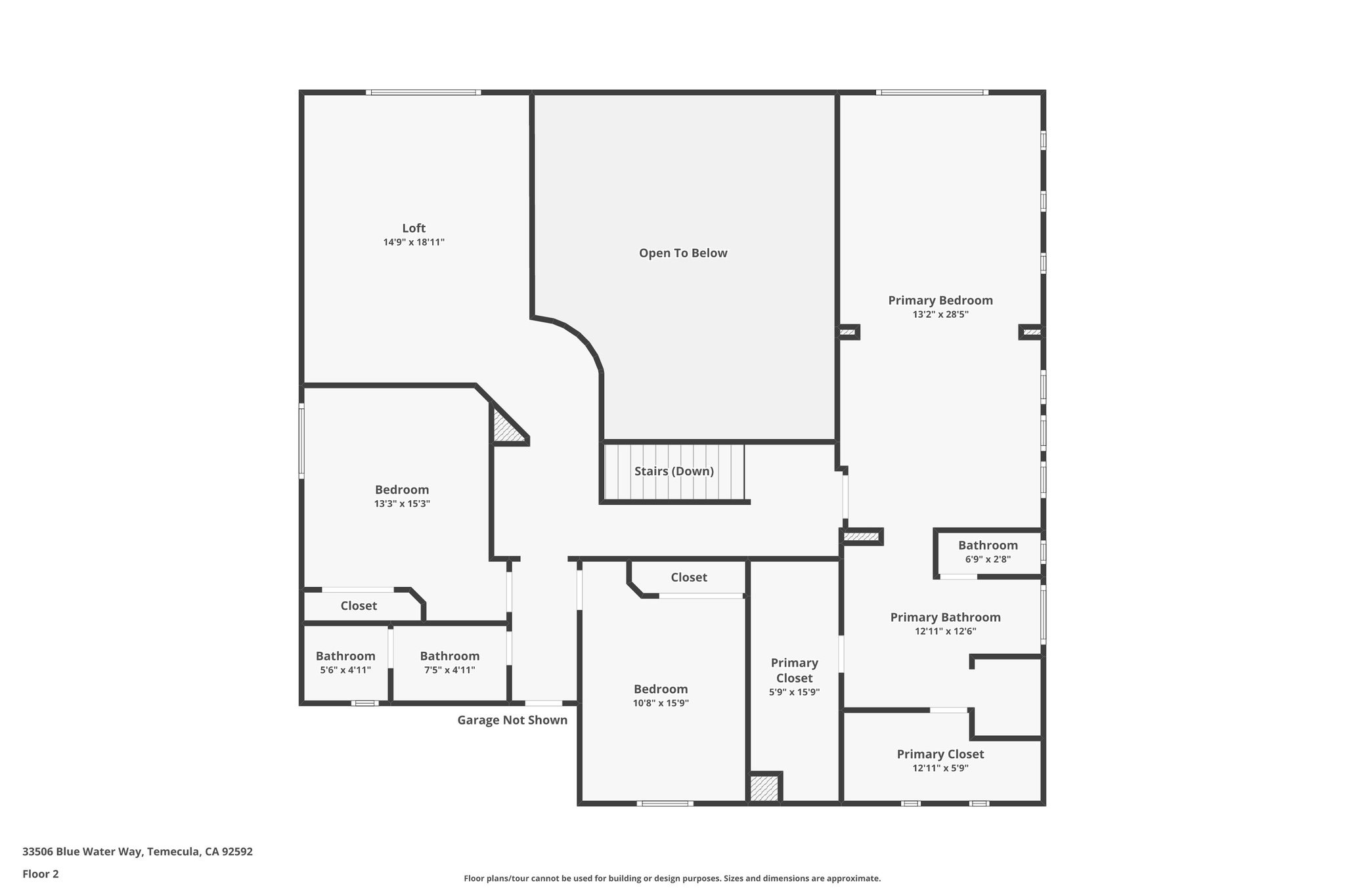
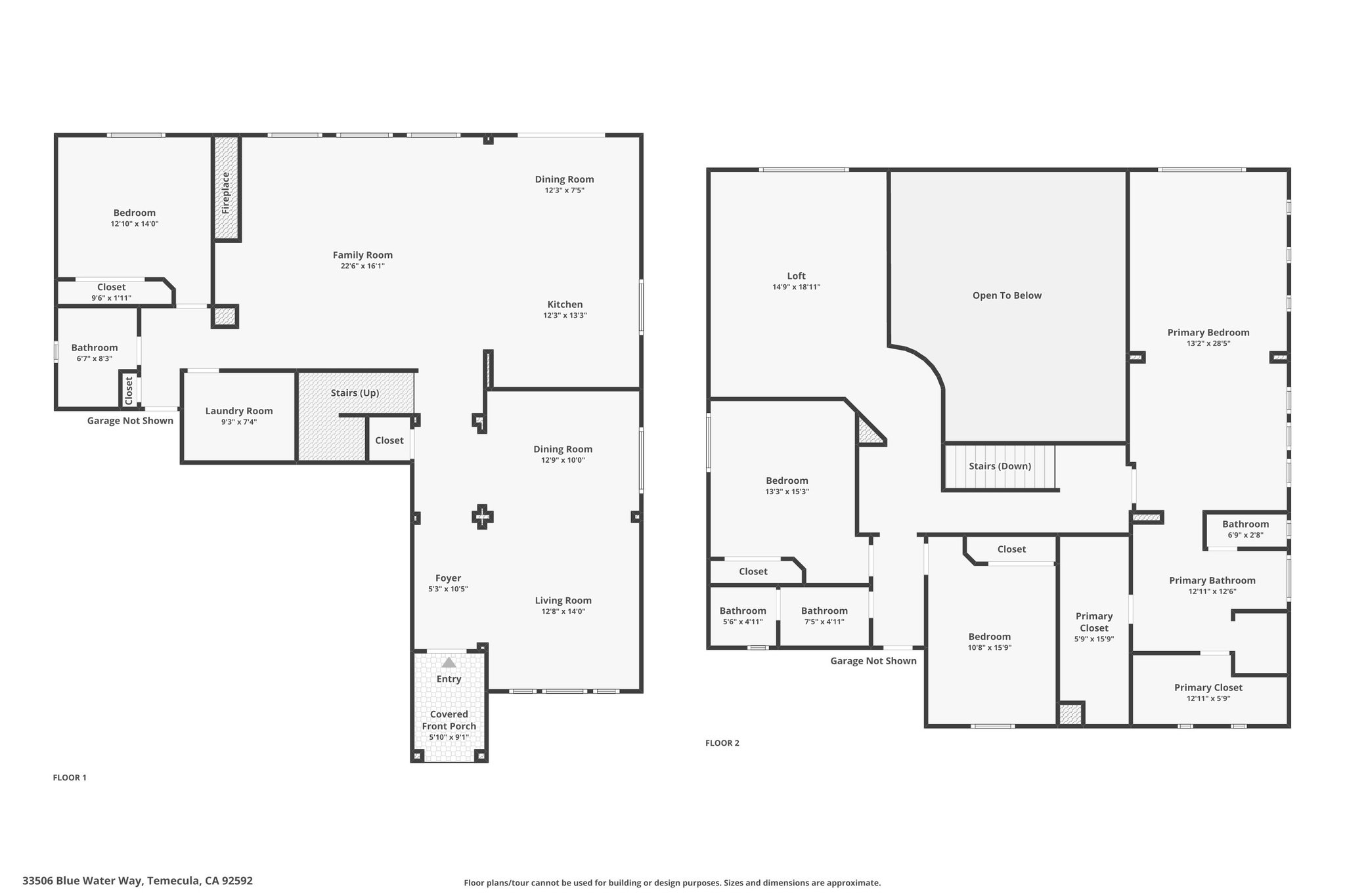
Floor Plans
Map
33506 Blue Water Way
Temecula, CA 92592
Scroll to Content
Images
Slideshow
Photo Grid
Hide
Previous
Next
Show more
Floor Plans
Slideshow
Photo Grid
Hide
Previous
Next